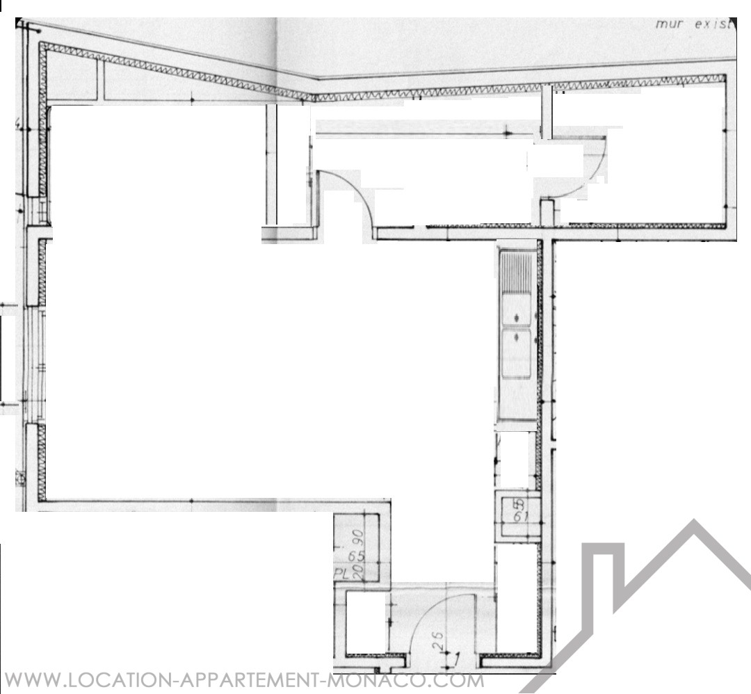
LARGE STUDIO WITH ALCOVE
Close to beaches, shops and amenities
In a beautiful residence with concierge, large studio composed of an entrance hall with fitted wardrobes, main room with open fitted kitchen, alcove with window, beautiful dressing room with full bathroom with washing machine, small balcony.
Mixed use.