Apartments for rent in Monaco

MONTE CARLO SUN / STUDIO WITH TERRACE / CELLAR and PARKING

Back to listing

3 500 €
No. rooms : Studio
Product type : Apartment
City : Monaco
Country : Monaco
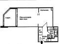
Living area : 42 sqm
Total area : 50 sqm
Terrace area : 8 sqm
Release date : 1er avril 2026
Parking : 1

Large studio with entrance and closet, fitted kitchen, main room, bathroom and loggia.

A cellar 

Parking 


Property location

Agence

Coldwell Banker Etic Realty
15, boulevard Princesse Charlotte

www.eticimmobilier.com

+377 93 50 57 94

Contact

* required information

Back to listing

FR EN IT

Districts of Monaco

Anse du Portier / Carré d'Or / Condamine / Fontvieille / Jardin Exotique / La Rousse - Saint Roman / Larvotto / Monaco-Ville / Moneghetti / Monte-Carlo / Port